InnoDez designed and developed MEP and Structural Engineering for True Light Christian Assembly in Arcola, Texas.


We worked hard with the Crosspointe Church Architects provide a high quality set of designs to fulfill Owner’s requirements.
The drawings were approved by the City and the project is in Construction phase now.
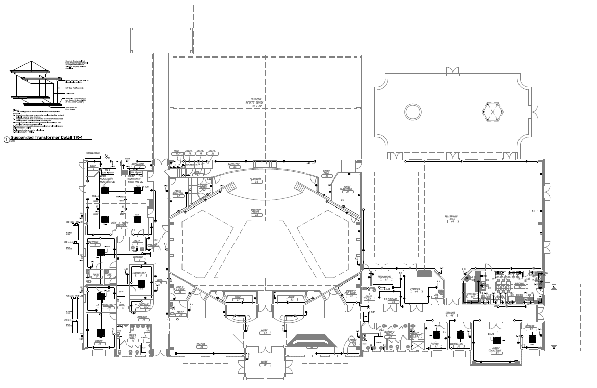
Electrical Plan


Mechanical Plan


