INNODEZ – SAN DIMAS DUPLEXES, SAN DIMAS, CA – PROJECT UPDATE
INNODEZ provided full package Structural, Civil, and MEP design services to support the full plan submittal of a new 2 story duplex, Multi-Family Project in the City of San Dimas CA.


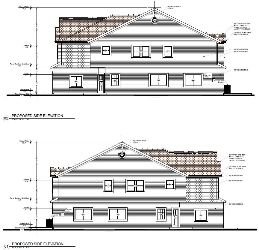
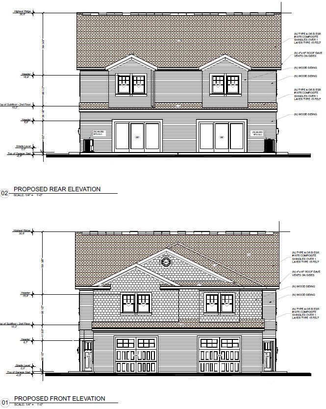
The new 2 story duplex unit consists of 2 new family units, attached garages. Each unit is comprised of more than 2,000 square feet of livable dwelling space with lower-level kitchen, large family room, and shared bathroom. The 2nd-floor units are uniquely designed as a 2 bedroom plus master bedroom with private baths and showers. Each unit has a shared back yard area with landscape and open space with private wall and fencing. We were able to make it happen in a short time in a teamwork conducted by the architect, civil engineer, and the client, led by our project manager.


INNODEZ has completed and coordinated the entire scope of work on this project for submittal to the City Staff for review and approval including all CA Green elements and T24 elements for energy efficiency as well to make this a sought-after housing project in the City of San Dimas.
It is great to know that below tasks were completed in less than two months:
- Soil test report
- Site survey
- Civil engineering
- Landscape design
- Structural design
- Mechanical, electrical, and plumbing
- Title 24








