As cannabis business is growing in California, we received requests this October for design of processing and drying facilities marked to become operational for harvest season 2020. To meet this relatively tight deadline, we started planning & design phase promptly and are diligently pursuing the permitting for construction process.

We were awarded 2 contracts to support design activities for Cannabis Facilities (Retail Store, Manufacturing & Distribution) licensing application process in Illinois, during last weeks of October.
As some might already know, the Cannabis Regulation and Tax Act provides for the controlled legalization of adult use cannabis in Illinois beginning January 1, 2020. The Illinois Department of Financial and Professional Regulation (IDFPR) is charged under the act with implementing and administrating multiple aspects of the program.
The competition is very tense as IDFPR is anticipated to only award up to 75 Conditional Adult Use Dispensing Organization Licenses.
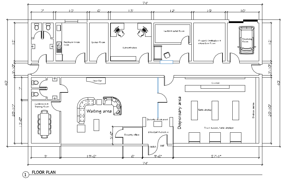
Dispensary Design: Based on the guidelines highlighted in the application text, to ensure highest score, a proposed floor plan should include the layout and estimated square footage of the predicted dispensary.
In addition, the package should include a description of the air treatment system that will be installed to reduce odors.


The interior design and arrangement of the furniture has considerable significance in dispensary design and the way that you can keep the customer as much as possible in the shop.
Allow us to team with you early in the game.
Would be delighted to hear back from you.